- HOME/
- 企画商品エラベール

省コストでもセミオーダー。自由に選べる家づくり。
「エラベール」は無理をせずマイホームの夢を叶えます。
自由に選べる4つの外観と4つの内装インテリア
「エラベール」は企画(規格)住宅です。お客さまのご予算と好みのデザインや間取りに合わせた多彩なプランで対応できます。













「エラベール」は上記3プラン以外にも20坪から35坪まで全7つのプランをご用意しています。








外観と内観、どのスタイルの組み合わせがお好みですか?
エラベール
「エラベール」はひとつのプランで、4つの外観と4つの内装インテリアが同じ価格で選べます。土地と建物を合わせても手の届く価格でマイホームが取得できます。
プランは7つ、20坪から35坪までご用意しています。
お客さまのご予算と好みのデザインや間取りに合わせて選んでください。
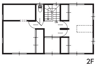
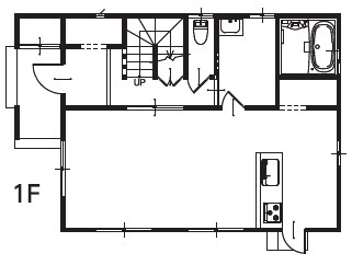
プラン例 4LDKタイプ 「4LDK+納戸+バルコニー+外部収納」


建物本体価格(税別)
16,667,000円
建物面積 114.69㎡(34.69坪)
別途工事
・地盤調査費・建築確認申請料
・屋外給排水工事・カーテン
・エアコン・外構工事・照明器具
自分らしく好きなプランと外観・内観のデザインを選んで楽しく家づくり
NATURAL CAFE
NATURAL MODERN
SIMPLE MODERN
VINTAGE


トータル面積表 ㎡(坪)
敷地面積 212.71 (64.34) 建築面積 62.93 (19.03)
床面積1階 59.21 (17.91) 2階 55.48 (16.78)
延床面積 114.69 (34.69) 施工床面積 125.87 (38.07)




ホームステージング 1F ~Natural Cafe~
あたたかみのある色の木に囲まれた「おうちカフェ空間」。
馴染みやすい木を使った空間は家族みんなが居心地の良い時間を過ごせます。
■Natural Cafe トータルイメージ


ホームステージング 2F ~Natural Cafe~
それぞれがホッとリラックスできるプライベートスペース。
ついつい友人を呼んでしまいたくなる自慢のお部屋を作ります。
寝室

照明プラン 1F











照明プラン 2F









外構計画図


外構イメージCG
■外構 南側イメージ
■外構 東北側イメージ
エラベール・・・プラン(1)
3LDKタイプ 3LDK+納戸+バルコニー

エラベール・・・プラン(2)
3LDKタイプ 3LDK+納戸+バルコニー

エラベール・・・プラン(3)
3LDKタイプ 3LDK+タタミコーナー+納戸+インナーバルコニー

4LDKタイプ 4LDK+納戸+インナーバルコニー

エラベール・・・プラン(4)
3LDKタイプ 3LDK+納戸

4LDKタイプ 4LDK+納戸

エラベール・・・プラン(5)
3LDKタイプ 3LDK+納戸+バルコニー+外部収納

4LDKタイプ 4LDK+納戸+バルコニー+外部収納

エラベール・・・プラン(6)
4LDKタイプ 4LDK+納戸+物干室

4LDKタイプ 4LDK+納戸+物干室

エラベール・・・プラン(7)
4LDKタイプ 4LDK+納戸+インナーバルコニー

4LDKタイプ 4LDK+納戸+インナーバルコニー

エラベール・・・販売価格表
| No. | 建物タイプ | 延床面積(法床面積) | 販売価格(税別) |
|---|---|---|---|
| 1 | 3LDK | 68.73㎡(20.79坪) | 12,381,000 |
| 2 | 3LDK | 77.84㎡(23.54坪) | 13,450,000 |
| 3 | 3LDK | 99.38㎡(30.06坪) | 15,143,000 |
| 4LDK | 109.30㎡(33.06坪) | 16,091,000 | |
| 4 | 3LDK | 99.38㎡(30.06坪) | 15,143,000 |
| 4LDK | 110.96㎡(33.56坪) | 16,385,000 | |
| 5 | 3LDK | 103.10㎡(31.19坪) | 15,470,000 |
| 4LDK | 114.69㎡(34.69坪) | 16,667,000 | |
| 6 | 4LDK | 104.34㎡(31.56坪) | 15,470,000 |
| 4LDK | 112.62㎡(34.07坪) | 16,385,000 | |
| 7 | 4LDK | 104.34㎡(31.56坪) | 15,470,000 |
| 4LDK | 112.62㎡(34.07坪) | 16,385,000 |

















